新琴似10条4丁目 2号棟

3,890万円

北海道札幌市北区新琴似十条4丁目4-6

学園都市線「新琴似」駅徒歩10分

札幌市営南北線「麻生」駅徒歩15分

函館本線「札幌」駅バス25分北海道中央バス「新琴似12条4丁目」停歩4分

価格
3,890万円
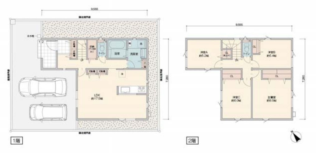
間取り
4LDK
土地面積
137.91㎡
所在地
北海道札幌市北区新琴似十条4丁目4-6
交通

学園都市線新琴似」駅 徒歩10分

札幌市営南北線麻生」駅 徒歩15分

函館本線札幌」駅 バス25分 北海道中央バス「新琴似12条4丁目」 停歩4分

建物面積
110.14㎡
築年月
2023年3月(築2年)

物件の特徴

  • カウンターキッチン

  • 独立洗面台

セールスポイント

令和5年3月完成の建売住宅!車種により敷地内駐車2台可能!JR駅徒歩10分!地下鉄駅徒歩15分!ダブルアクセス可能で通勤通学・お出掛けにも便利!

ポイント

近隣には商業施設が充実!日々のお買い物も便利な立地!エコジョーズ採用で経済的!各居室収納スペースもしっかりと確保されており整理整頓も楽ちん!

担当者のコメント

中川 友紀也

お客様の事を第一に考え、誠意をもってご対応致します。些細な事でもお気軽にご相談下さいませ。

基本情報

販売戸数
-
総戸数
-
間取り / 詳細
4LDK
LDK/洋室/洋室/洋室/洋室
向き
南西
建物面積(坪数)
110.14㎡(33.31坪)
土地面積(坪数)
137.91㎡(41.71坪)
建ぺい率 /
容積率
50%/80%
築年月
2023年3月(築2年)
駐車場 /
月額料金
有(2台) 0円 車種による、現地要確認
土地権利
所有権
土地
(敷金 / 保証金)
- / -
建物構造
木造 / 2階建
傾斜地部分面積
-
路地状敷地
-
私道負担面積
-
セットバック
高圧線下面積
-
施工会社
-
用途地域
第一種低層住居専用
地目 / 地勢
宅地 / 平坦
接道状況
一方(北西 公道 6.0m)
国土法届出要否
不要
都市計画
市街化区域
総区画数 /
販売区画数
-/-
現況
空家
その他
法令上の制限
-
取引態様
仲介
引渡し
即時
取引条件の
有効期限
2025年12月19日

設備条件

設備条件
  • フローリング / プロパンガス / 公営水道 / 公共下水 / ガスコンロ / コンロ2口以上 / 食器洗い乾燥機 / システムキッチン / カウンターキッチン / コンロ3口 / 追焚機能浴室 / 温水洗浄便座 / 洗髪洗面化粧台 / 独立洗面台
設備(その他)
    -

その他

物件番号
88023047
管理コード
240811m
建築確認番号
-
情報更新日
2025年12月05日
次回更新予定日
2025年12月19日
取扱会社
  • エスケイ不動産流通 株式会社
  • 北海道札幌市豊平区平岸三条5丁目4-22 平岸グランドビル新館 5階
  • TEL:011-842-0056
  • 北海道知事石狩 (4) 第007669号
  • (公社)北海道宅地建物取引業協会
備考
近隣には商業施設が充実!日々のお買い物も便利な立地!エコジョーズ採用で経済的!各居室収納スペースもしっかりと確保されており整理整頓も楽ちん!

周辺施設

  • 札幌市立新琴似中学校の画像

    中学校

    札幌市立新琴似中学校

    739m(10分)

  • ニトリ 麻生店の画像

    インテリア

    ニトリ 麻生店

    1212m(16分)

  • ツルハドラッグ 麻生店の画像

    ドラッグストア

    ツルハドラッグ 麻生店

    1352m(17分)

  • LUCKY(ラッキー) 新琴似四番通店の画像

    スーパー

    LUCKY(ラッキー) 新琴似四番通店

    1473m(19分)

  • 新琴似中央公園の画像

    公園

    新琴似中央公園

    1524m(20分)

  • まるとみストアーの画像

    その他

    まるとみストアー

    1586m(20分)

  • 麻生緑地の画像

    公園

    麻生緑地

    1594m(20分)

  • 北海道警察本部 北警察署 交番 麻生の画像

    警察

    北海道警察本部 北警察署 交番 麻生

    1606m(21分)

  • 麻生内科クリニックの画像

    内科

    麻生内科クリニック

    1647m(21分)

  • 北洋銀行 麻生支店(麻生コンサルティングプラザ設置店)の画像

    銀行

    北洋銀行 麻生支店(麻生コンサルティングプラザ設置店)

    1665m(21分)

  • 麻生ショッピングセンターの画像

    ショッピングセンター

    麻生ショッピングセンター

    1727m(22分)

  • 北空知信用金庫麻生支店の画像

    銀行

    北空知信用金庫麻生支店

    1780m(23分)

  • セブンイレブン 札幌北37条店の画像

    コンビニエンスストア

    セブンイレブン 札幌北37条店

    1819m(23分)

  • 東麻生どうぶつ病院の画像

    動物病院

    東麻生どうぶつ病院

    1909m(24分)

  • 杉村歯科医院の画像

    歯科

    杉村歯科医院

    1913m(24分)

  • ジェイ・アール生鮮市場 新琴似店の画像

    スーパー

    ジェイ・アール生鮮市場 新琴似店

    1989m(25分)

  • 司馬内科クリニックの画像

    内科

    司馬内科クリニック

    2053m(26分)

  • ツルハドラッグ 北36条西店の画像

    ドラッグストア

    ツルハドラッグ 北36条西店

    2056m(26分)

  • 札幌市立光陽小学校の画像

    小学校

    札幌市立光陽小学校

    2086m(27分)

  • ローソン 札幌北41東二丁目店の画像

    コンビニエンスストア

    ローソン 札幌北41東二丁目店

    2111m(27分)

支払いシミュレーション

月々の支払額
9.6
購入希望物件価格
万円
頭金
万円
金利
%
返済額(ボーナス1回分)
万円
返済期間

※ボーナスは自動で年2回分で計算されます。

近隣の物件

  1. 新琴似10条4丁目 1号棟

    札幌市北区新琴似十条4丁目

    4LDK (106.41㎡)

    3,920万円

  2. 新琴似1条8丁目

    札幌市北区新琴似一条8丁目

    3SLDK (94.81㎡)

    2,990万円

  3. 屯田9条1丁目

    札幌市北区屯田九条1丁目

    4LDK (132.30㎡)

    2,490万円

  4. 篠路8条6丁目

    札幌市北区篠路八条6丁目

    4LDK (104.75㎡)

    2,650万円

新琴似10条4丁目 2号棟

新琴似10条4丁目 2号棟

3,890万円

-

4LDK(110.14㎡)

お気軽にお問い合わせください

無料お問い合わせ

エスケイ不動産流通 株式会社

011-842-0056

9:00~18:00

(休:水曜日)